Elektrikli Kombi
Ürün Kodu: ÜEK

ÜNMAK ÜEK Serisi Elektrkli Kombi; rakiplerinden farklı özellikleri ile, enerji tasarrufu sağlar ve yüksek verimlilikte çalışır. Isınma ihtiyacı olan mekanlar için konforlu çözüm sağlar.

ÜNMAK ÜEK Serisi Elektrikli Kombi; rakiplerinden farklı özellikleri ile, enerji tasarrufu sağlar ve yüksek verimlilikte çalışır. Isınma ihtiyacı olan mekanlar için konforlu çözüm sağlar.

9 kademeli elektronik otomasyonu ile enerji tasarrufu sağlar.

Elektronik dijital kumanda panosu ile istenilen ısı kontrolü sağlanmıştır. 

Üç kademeli sirkülasyon pompası ile her türlü tesisat şartlarına uygundur.

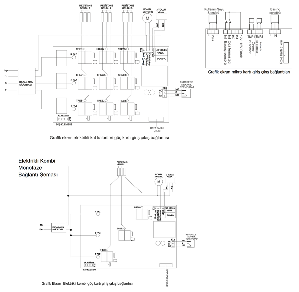
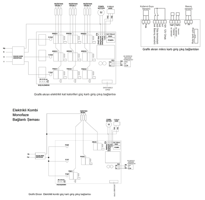
Kaçak akım rölesi ile elektrik kaçaklarına karşı koruma sağlanmıştır.

Kazan emniyetli çalışması için dört kontrol sistemi tasarlanmıştır.

 1-) Suyun basıncının artması durumunda basınç sensörü ve emniyet ventili,
 2-) Suyun sıcaklığının artması durumunda emniyet termostatı,
 3-) Suyun eksilmesi durumuna karşı su seviye rölesi,
 4-) Donmaya karşı koruma sistemi 

Sistem, kapalı devre çalıştığı için tesisat suyunun her noktaya ulaşması sağlanmış ve korozyon önlenmiştir.

Sistem, suyun sıcaklık farkına göre çalışmakta, bu çalışma ile gereksiz enerji sarfiyatı engellenerek enerji tasarrufu sağlanmıştır. 

Oda termostatı ilavesi ile; istenilen oda sıcaklığına göre çalışma sağlanmıştır. Ayrıca uzaktan kumanda imkanı sağlanmıştır. 

Zaman saati ile istenilen saat dilimleri aralığında otomatik çalışma sağlanmıştır.

Estetik ve özel dizaynı ile dar alanlarda montaj kolaylığı sağlar. 

Eşanjör ünitesi ile; kullanım sıcak su ihtiyacı yaz-kış moduna göre sürekli karşılanabilmektedir. 

Evsel kullanım için tasarlanmıştır.

Sessiz çalışır. 

MODEL-SERİ ÜEK-12 ÜEK-18 ÜEK-24
Isıtma Gücü kW 12 18 24
kcal/h 10.320 15.480 20.640
Ağırlık kg 44 44 46
Tesisat Gidiş (A) R" 3/4" 3/4" 3/4"
Tesisat Dönüş (B) R" 3/4" 3/4" 3/4"
Kullanım Su Çıkışı R" 1/2" 1/2" 1/2"
Kullanım Su Girişi R" 1/2" 1/2" 1/2"
İşletme Basıncı bar 2 2 2
Kullanım Suyu Debisi lt/h 450 600 600
Maksimum Kullanım Suyu Sıcaklığı °C 55 55 55
Genişlik mm 400 400 400
Derinlik mm 250 250 250
Yükseklik mm 715 715 715
Bağlantı Kablosu Adet/mm2 5*6 5*6 5*6
Elektrik Bağlantısı V/Hz 400/50 400/50 400/50

*Ölçülerde değişiklik yapma hakkımız saklıdır.

*Kablo kesitleri, 15 metreye kadar, bakır kabloya göre hesaplanmıştır.